DISEÑO E INGENIERIA

  • Definición de los parámetros para el diseño de plantas equipo y maquinarias
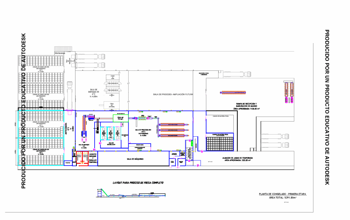
  • Diseño del layout de plantas 
  • Elaboración de diagramas de los flujos de proceso 
  • Determinación del cuadro de carga requerida por los proyectos
  • Desarrollo de planos de distribución de planta según normativa de procesos agroindustriales vigente
  • Diseños de sistemas de tuberías
  • Diseño de sistemas de manejo de residuos sólidos y líquidos
  • Cálculo de balances técnicos para el diseño de plantas (consumo de agua, balance de personal, identificación de cuellos de botella, entre otros)
  • Gestión de proyectos
  • Elaboración de cronogramas de actividades mediante Microsoft Project
  • Diseño de procesos y sistemas de maduración de frutas
  • Balance de vapor 

Layout Planta Huacho

Maquina tina de desinfección con elevador

Tina con elevador Motupe

Lavadora de Fresa Proexi